• start
  • projects + actions
  • us
  • projekty + działania
  • my

beton.

  • start
  • projects + actions
  • us
  • projekty + działania
  • my

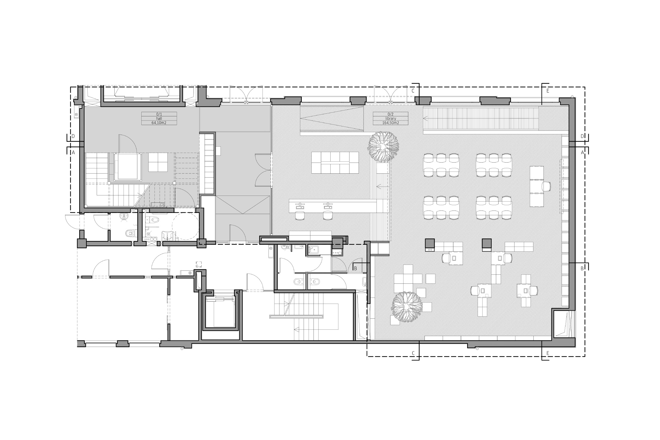
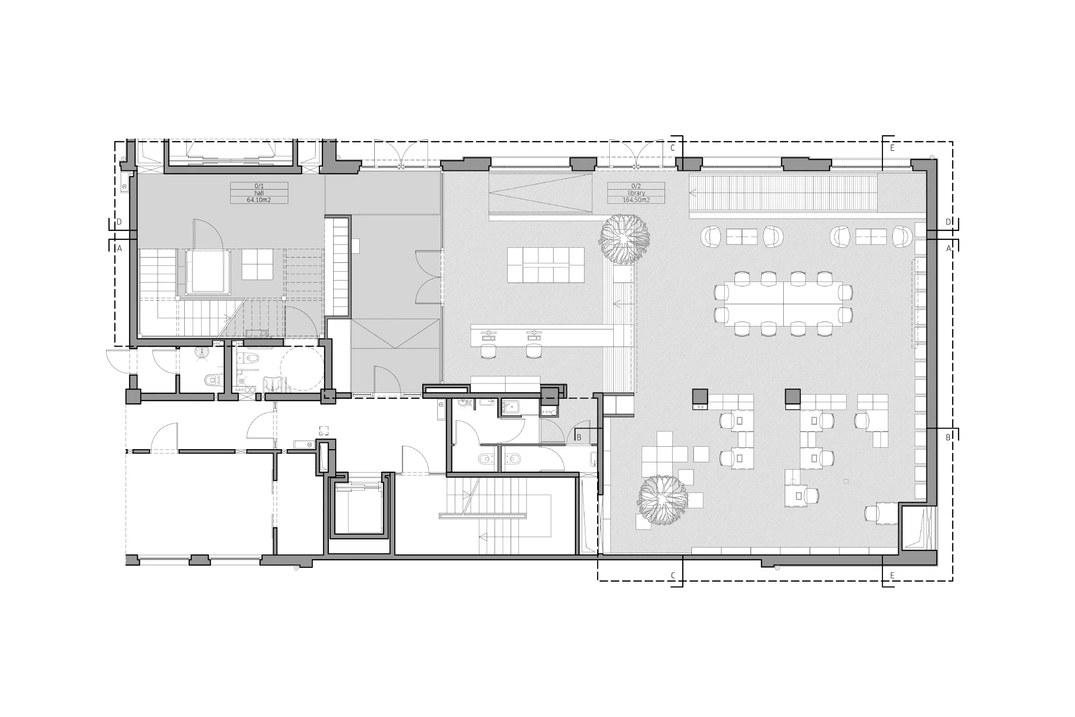
Goethe-Institut library

what:
interior remodelling

who:
Goethe-Institut in Warsaw

when:
2015

The main objective of the project was creation of a multi-purpose space, which – thanks to the custom-designed modular furniture – can be easily adapted to accomodate various activities and events. It can be used as a library, a reading room, a lecture and workshop hall, and even as a small cinema or a concert hall.

gi_1.jpg
gi_2.jpg
gi_3.jpg
gi_4.jpg
gi_5.jpg
gi_6.jpg
gi_7.jpg
gi_8.jpg
gi_9.jpg
gi_10.jpg
gi_11.jpg
gi_12.jpg

beton. / 2025