• start
  • projects + actions
  • us
  • projekty + działania
  • my

beton.

  • start
  • projects + actions
  • us
  • projekty + działania
  • my

biblioteka Goethe-Institut

co:
projekt przebudowy wnętrz

kto:
Goethe-Institut w Warszawie

kiedy:
2015

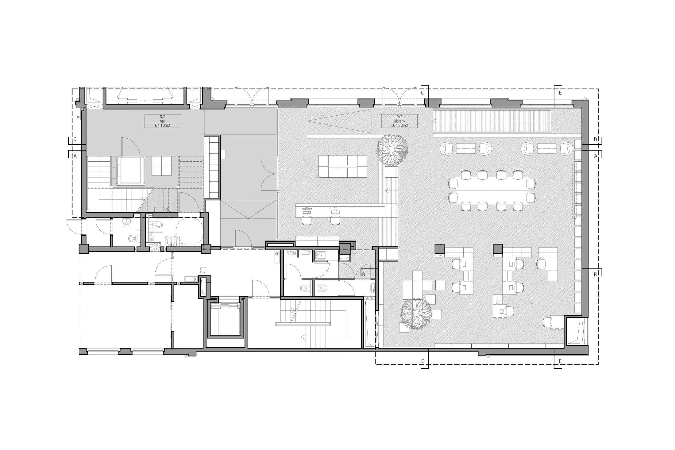
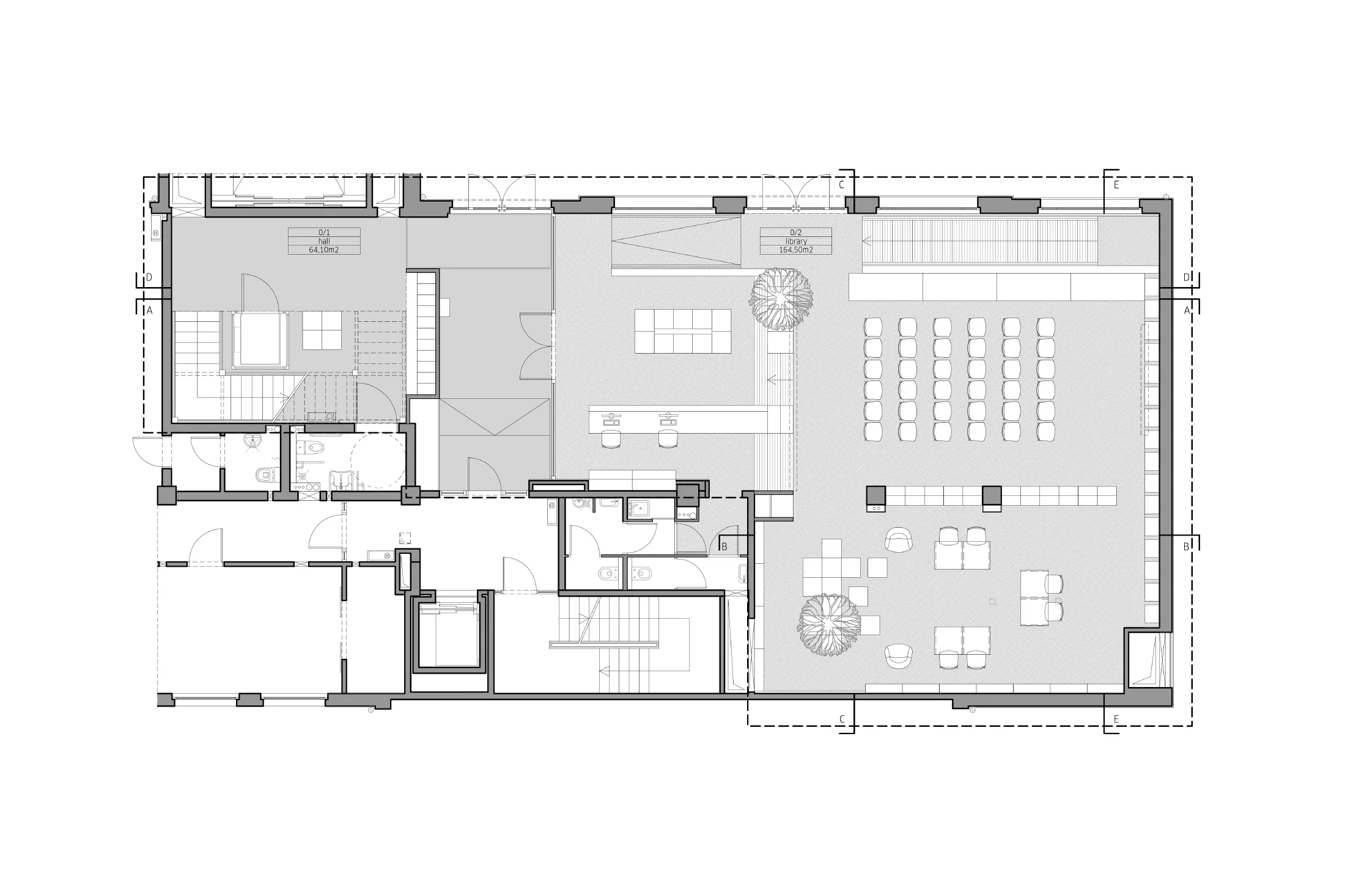
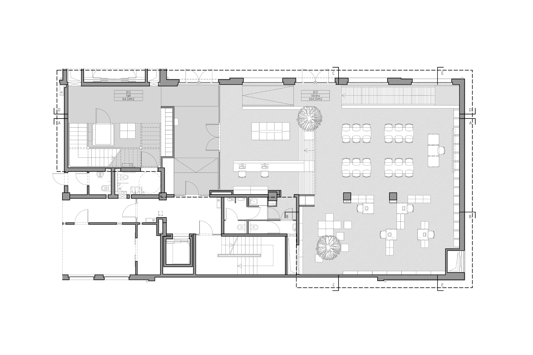
Projekt zakładał stworzenie wielofunkcyjnej przestrzeni, która dzięki specjalnie zaprojektowanym modułowym meblom może zmieniać swoją wielkość, kształt i charakter. Z bibliotecznej czytelni łatwo przeistacza się w salę wykładową, w miejsce do przeprowadzenia warsztatów albo koncertu.

gi_1.jpg
gi_2.jpg
gi_3.jpg
gi_4.jpg
gi_5.jpg
gi_6.jpg
gi_7.jpg
gi_8.jpg
gi_9.jpg
gi_10.jpg
gi_11.jpg
gi_12.jpg

beton. / 2025